Property Information

ミキハウスビル

福井県福井市大宮2-15-33

1986 昭和61年4月3日登記
3F 鉄筋コンクリート造 / 陸屋根
460㎡ 敷地面積 合計
660㎡ 延床面積 合計

Building Details

物件概要

  • 所在地福井県福井市大宮2-15-33
  • 構造鉄筋コンクリート造・陸屋根・3階建て
  • 登記日昭和61年4月3日(1986年)
  • 宅地面積410.67㎡(大宮二丁目1501番1)
  • 宅地面積 249.54㎡(大宮二丁目1501-2)
  • 1F 床面積213.6㎡
  • 2F 床面積222.76㎡
  • 3F 床面積224.47㎡

Floor Plans

フロアプラン

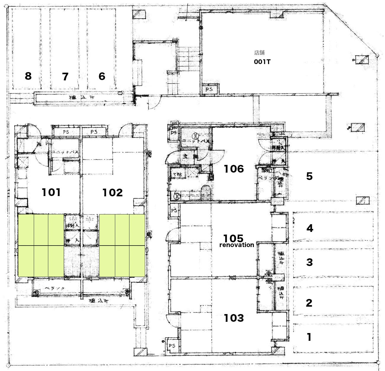
1階床面積 213.6㎡ 1階フロアプラン
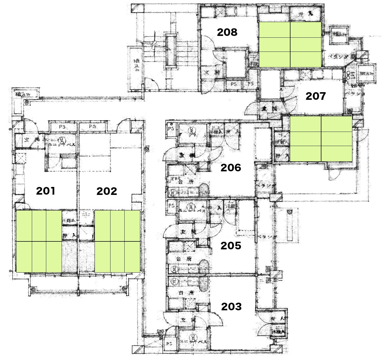
2階床面積 222.76㎡ 2階フロアプラン
3階床面積 224.47㎡ 3階フロアプラン

Room Status

入居状況

1 F L O O R
部屋番号 現状 備考
001T 入居中 店舗
101 入居中 畳部屋あり
102 入居中 畳部屋あり
103 空き 修繕予定
105 入居中 リノベーション
106 入居中
2 F L O O R
部屋番号 現状 備考
201 入居中 畳部屋あり
202 入居中 畳部屋あり
203 入居中
205 入居中
206 空き 修繕中
207 空き 修繕予定
208 入居中 畳部屋あり
3 F L O O R
部屋番号 現状 備考
301 入居中 畳部屋あり
302 入居中 畳部屋あり
303 空き
305 空き リノベーション
306 入居中
307 空き 修繕予定
308 空き 畳部屋あり

お問い合わせ・お申し込み

物件に関するご質問やお申し込みはこちらからどうぞ

大橋駐車場を見る お問い合わせ →